Проектирование интерьеров для сдачи в аренду часто сводится к компромиссу между безликим «евроремонтом» и неоправданными затратами на декор
В своем новом проекте в Алматы дизайнер Яна Хох (студия In Art We Trust) демонстрирует иную модель. Квартира площадью 50 м2 разрабатывалась как коммерческий продукт, где на первый план вышли адаптивность, износостойкость и долгосрочная актуальность визуальных решений.

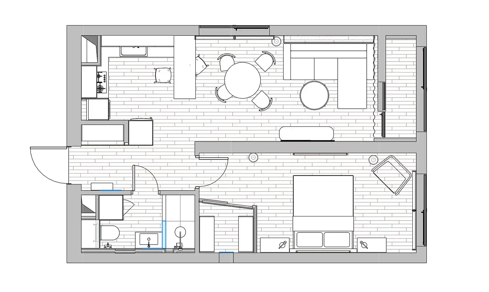
Концепция и планировочные решения
Исходные данные диктовали жесткие рамки: сжатые сроки, ограниченный инвестиционный бюджет и компактная площадь. Заказчик — инвестор, ориентированный на долгосрочную сдачу объекта. Поскольку портрет конечного арендатора размыт (от одиночного специалиста с home-office до пары), пространство должно было стать «интерьером-хамелеоном».
Кардинальной перепланировки не проводилось. Дизайнер сосредоточилась на функциональном перераспределении зон и оптимизации систем хранения. Стратегически важным, хотя и невидимым глазу решением, стала система адаптивного проектирования: расположение розеток и световых групп изначально закладывалось с учетом возможных перестановок мебели. Это исключает необходимость дополнительных затрат при смене жильцов или сценариев использования.
Палитра и материалы: метафора «тихой среды»
Цветовая база строится на природных оттенках, что отражено в названии проекта. Теплый песочный фон формирует устойчивую базу, а эвкалиптовый зеленый добавляет пространству визуальной глубины. Выбор материалов продиктован прагматикой: на полу использован износостойкий SPC-ламинат, на стенах — краска Dulux и обои под покраску.
Не обошлось без сложностей реализации. Дизайнер отмечает типичную проблему рынка — низкую квалификацию строительных бригад при работе с нестандартными задачами. В частности, автору проекта пришлось лично обучать мастеров технологии нанесения декоративной штукатурки.
Архитектурный акцент: уход от плиточной «коробки»
Самой сложной зоной традиционно стал санузел. Стояла задача создать ощущение спа-зоны в условиях жесткого дефицита площади и без применения дорогостоящих отделочных материалов.
Удачным архитектурным решением стало использование стеклоблоков. Они позволили мягко рассеять свет и добавить помещению объема, избавив ванную от давящего эффекта стандартной глухой облицовки. Это подтверждает тезис о том, что выразительность интерьера может строиться на простых конструктивных приемах, а не на избыточном декорировании.
Предметная среда и локальный дизайн
Для придания пространству характера, которого часто лишены коммерческие объекты, Яна Хох вместе интерьерным стилистом интегрировала в проект авторские элементы. В спальне размещено декоративное панно, сгенерированное с помощью ИИ специально под этот интерьер. На кухне и в спальне расставлены акценты в виде авторской керамики Светланы Плотниковой. В гостиной используются вазы Decor Room Almaty из Maison Design. Корпусная мебель (KAAS Kitchen) и полубарные стулья из массива карагача выполнены локальными мастерскими.
Итог
Проект «Эвкалипт и песок» представляет собой грамотно просчитанную модель городского проживания, созданную под запросы конкретной семьи. Интерьер демонстрирует зрелый системный подход, где выбор материалов, сценарии освещения и распределение бюджета направлены на экономическую эффективность и эстетическую устойчивость пространства.
- Локация: Алматы, Казахстан (ЖК «Меридиан»)
- Метраж: 50 м²
- Тип недвижимости: Квартира под коммерческую аренду
- Автор проекта: Яна Хох (студия In Art We Trust) IG@xoxochka
- Стилист: Марина Понятова IG@marinastyling
- Фотограф: Юрий Григорец IG@y.grigoretz
- Год реализации: 2025
- Отделка: Краска Dulux, обои Art Home IG@art_home_exclusive, декоративная штукатурка Arsa IG@arsa_kz, стеклоблоки Baumarkt, SPC Мир Паркета.
- Мебель и свет: KAAS Kitchen (кухня), British Asia home IG@british.asia.home, Maison Design IG@maison_design, Legrand (электрика).
- Декор: Авторская керамика Светланы Плотниковой IG@svetname
- Вазы: Decor Room Almaty IG@decor_room_almaty